Prenájom priestorov v OD Dargov, prízemie.

prenajom, Obchodné priestory, Hlavná, Čiastočná rekonštrukcia

TOP ponuka
Dobrá ponuka
Druh ponuky: Prenájom
Mesto/obec: Košice - Staré Mesto
Druh nehnuteľnosti: Obchodné priestory
Stav nehnuteľnosti: Čiastočná rekonštrukcia
Ulica: Hlavná
Úžitková plocha: 50 m2
id: 68

Dohodou

Popis nehnuteľnosti:

Prenájom priestorov v OD Dargov, prízemie.

Ponúkame na prenájom obchodné priestory v OD Dargov.

OD Dargov prešiel rekonštrukciou.

Na prízemí sa nachádza novo vybudovaný priestor, kde sa nachádzajú navštevované potraviny, čo podstatne zvýši pohyb ľudí a atraktivitu priestorov.

Na prízemí sú k dispozícií priestory:

1. Rozloha 9,5 m2. Cena: 350,- EUR/mesiac.

2. Rozloha 29 m2. Cena: 870,- EUR/mesiac.

3. Rozloha 10 m2. Cena: 490,- EUR/mesiac.

4. Rozloha 49 m2. Cena: 1500,- EUR/mesiac.

5. Rozloha 50 m2. Cena: 1500,- EUR/mesiac.

6. Rozloha 38 m2. Cena: 1200,- EUR/mesiac.

7. Rozloha 25 m2. Cena: 875,- EUR/mesiac.

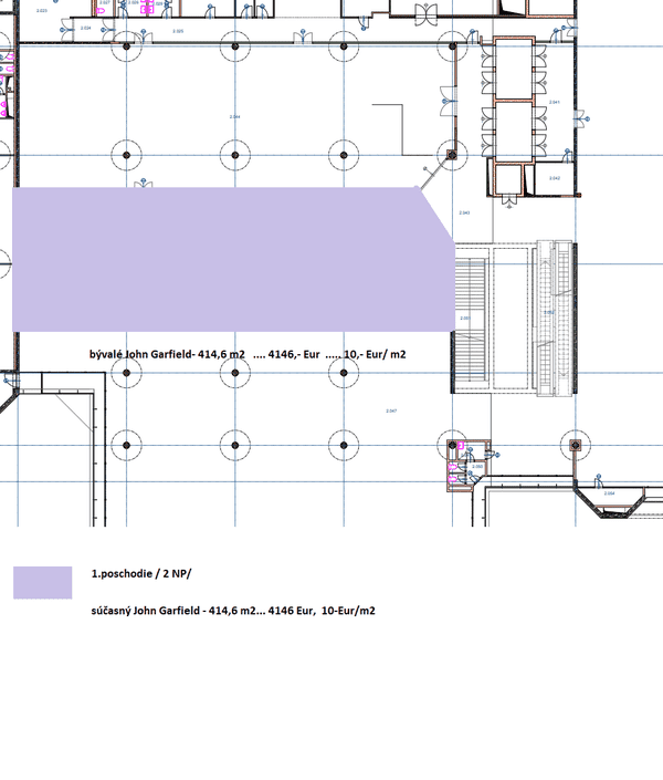
Na prvom poschodí:

Rozloha: 414,6 m2. Cena: 4146,- EUR/mesiac.

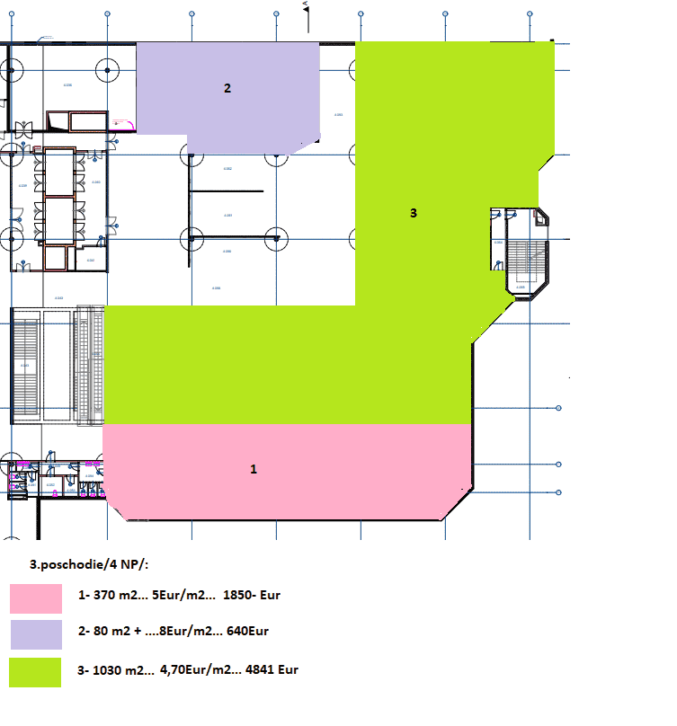
Na treťom poschodí:

1. Rozloha: 370 m2. Cena: 1850,- EUR/mesiac.

2. Rozloha: 80 m2. Cena: 640,- EUR/mesiac.

3. Rozloha: 1030 m2. Cena: 4841,- EUR/mesiac.

Maklér

Mgr. Tomáš Lukačko


+421 904 563 783

lukacko@tomreal.sk

* - povinný údaj

Kliknutím na tlačidlo ODOSLAŤ súhlasíte so spracovaním Vami zadaných údajov za účelom zodpovedania otázky či podnetu adresátom správy, ktorým je Mgr. Tomáš Lukačko - TOM REAL. Bližšie informácie o spracovaní a ochrane osobných údajov nájdete v sekcii "GDPR - Spracovanie osobných údajov".

Mohlo by Vás zaujať

V tejto kategórii